Mali, ali tako dobro osmišljen. Vodimo vas u stan u Ljubljani kojega su uredile arhitektice Petra Zakrajšek i Tjaša Najvirt iz arhitektonskog studija GAO arhitekti
Mali stanovi su uvijek veliki izazov za uređenje. Kako postići funkcionalnost, dovoljno prostora za sve stvari, a ne zakrcati prostor namještajem i ormarima te stvoriti dojam prozračnosti i veličine? Imamo super primjer koji pokazuje kako i u malom stanu možemo imati sve što i u velikom, a istovremeno izgledati prozračno i elegantno. Vodimo vas u divan stan od 34 kvadrata u Ljubljani kojega su osmislile arhitektice Petra Zakrajšek i Tjaša Najvirt iz arhitektonskog studija GAO arhitekti.

– Glavna želja investitora bila je osmisliti moderan i atraktivan stan. Najveći izazov u procesu oblikovanja bio je zadržati protočnost prostora i izbjeći zasićenost namještajem, a istovremeno osigurati sve što je potrebno za udoban i funkcionalan život – kažu arhitektice.

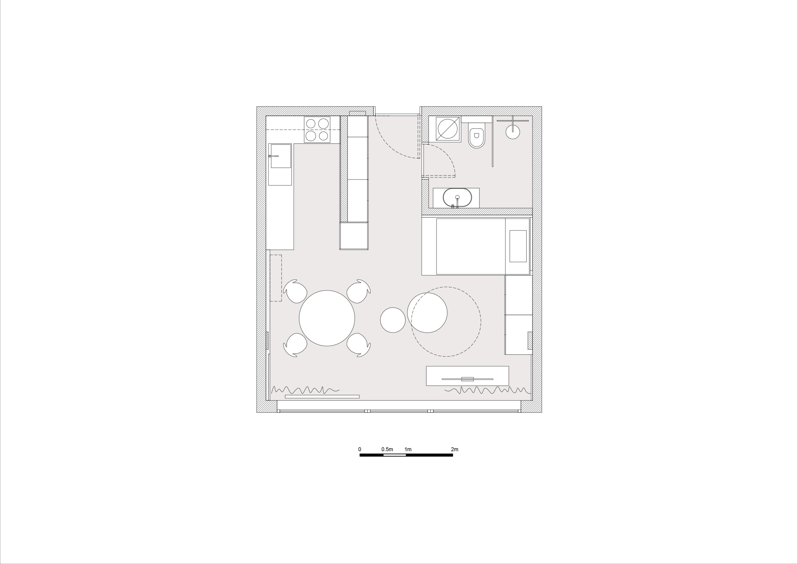
Pri ulasku u garsonijeru dočekuju nas po mjeri izrađeni garderobni ormari. Oni su istovremeno vizualna pregrada između kuhinjskog i dnevno/spavaćeg dijela, ali i funkcionalan veliki skladišni prostor kojemu se može pristupiti s obje strane. Linija ormara završava prostorom za hladnjak, čime kuhinja ostaje čista u izrazu, a visinska linija neprekinuta. Kuhinja je smještena u najmračnijem dijelu stambene jedinice, zbog čega su odabrani svijetli i minimalistički elementi.

Prostor oživljava crno-bijela tapeta koja prikazuje obalu i vegetaciju sjevernog Mediterana, a promatrača osvaja prizorom zaljeva okruženog brdom na kojem se uzdiže dvorac. Glavni zidovi uz prozor, odnosno staklenu stijenu, završeni su toniranim ogledalima u smeđkastom tonu, što vizualno povećava prostor i refleksijama stvara dodatnu dimenziju.

Mali znalački detalji, uvijek nas oduševljavaju kod arhitektice Petre Zakrajšek i njezinog tima.

– Posebnost ove garsonijere leži u njezinoj prozračnosti – prirodno svjetlo ulazi kroz cijelu dužinu prozorskih otvora. Stan je osmišljen tako da nudi sve glavne funkcije većih stambenih jedinica. Pogodan je za udoban život jedne osobe ili para, ali omogućuje i druženje s četiri ili više osoba. U tu je svrhu odabran okrugli stol, dodani su pokretni taburei i multifunkcionalni krevet koji se u nekoliko poteza pretvara u sofu.

Krevet, koji istovremeno služi i kao sjedeća garnitura, ima madrac presvučen istom tkaninom kao i naslon, oblikovan tako da imitira udobnost klasične sofe. Okvir kreveta uključuje klupu u produžetku te dodatni prostor za pohranu – objašnjavaju arhitektice.

U malim stanovima kupaonica je također izazov.
Kupaonica je uređena u crno-bijelim tonovima, a oštre linije ublažene su okruglim ogledalom. Perilica-sušilica skrivena je iza ormarskih fronti, čime prostor ostaje čist i minimalistički.

– Svi elementi i uređaji u garsonijeri pažljivo su birani i promišljeno dizajnirani kako bi na ograničenom prostoru pružili maksimalnu udobnost. Namještaj po mjeri izradio je Mizarstvo Lestetik, rasvjrtu Svetlarna, a zavjese UVA Design. Dobavljač tipskog namještaja je tvrtka Maros, a dekorativnih predmeta koji su podigli ambijent je Velana Living.

Evo i tlocrta te još nekoliko fotografija Mirana Kambiča.







































